Bouwen
Onze 377 sleutel-op-de-deur modellen
Onze kijkwoningen
Onze kijkwerven
Prestige woningen
Investeerder
Uitbreidingen/aanbouwen
Over ons
Over Woningen Compere
Energieverbruik
De sterke punten van ons lastenboek
Onze realisaties
De gebruikte materialen
De getuigenissen van onze klanten
News
Jobs
Contact
NL
Catalogus
gratis
408 pagina’s
modellen
Gratis catalogus
×
Bouwen
Onze 377 sleutel-op-de-deur modellen
Opendeurdagen
Onze kijkwoningen
Onze kijkwerven
We kopen je bouwgronden
Prestige woningen
Investeerder
Uitbreidingen/aanbouwen
Over ons
Over Woningen Compere
Energieverbruik
De sterke punten van ons lastenboek
Onze realisaties
De gebruikte materialen
De getuigenissen van onze klanten
News
Jobs
Contact
Gratis catalogus
NL
Volg ons op
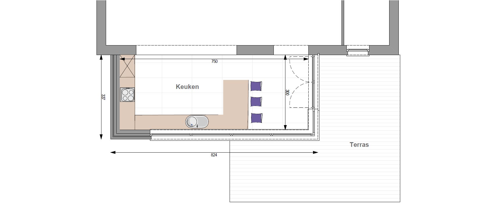
Uitbreiding CU12
"
CU12 model uitbreidingsplan
Plannen downloaden
Prijs van de CU12 modeluitbreiding
Sleutel-op-de-deur
77.345€ Excl. BTW
Winddichte ruwbouw
60.103€ Excl. BTW
Totale oppervlakte
27,77 m²
Kroonlijsthoogte: 3 m
Dakhelling: 0°
Onze partners