Gratis catalogus

Uitbreiding CU22

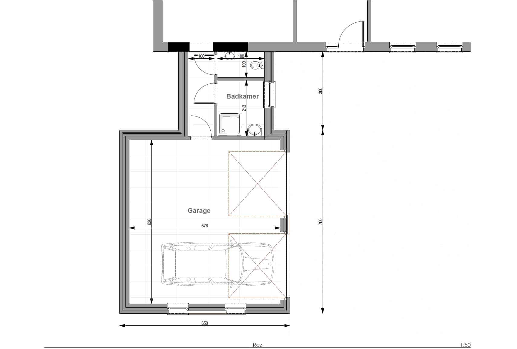
CU22 model uitbreidingsplan

Prijs van de CU22 modeluitbreiding

Sleutel-op-de-deur 136.504€ Excl. BTW
Winddichte ruwbouw 104.574€ Excl. BTW
Totale oppervlakte 56,42 m²
  Kroonlijsthoogte: 3 m
Dakhelling: 35°

Onze partners