WC876
Andere huizen
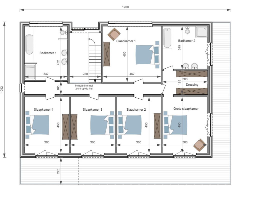
Plannen
Prijs
| Sleutel-op-de-deur | 447.883€ Excl. BTW |
|---|---|
| Winddichte ruwbouw | 346.509€ Excl. BTW |
| Totale oppervlakte | 363 m² |
| Prijs per m² | 1.234€ Excl. BTW |
Kroonlijsthoogte: 5.8 m.
Woningen Compere realisaties
De materialen bij Woningen Compere
Andere buitenafwerkingen
Dakpannen
Gevelstenen
Ramen
Spanten
Tegels
Verwarming