WC866
Andere huizen
Plannen
Prijs
| Sleutel-op-de-deur | 427.034€ Excl. BTW |
|---|---|
| Winddichte ruwbouw | 326.897€ Excl. BTW |
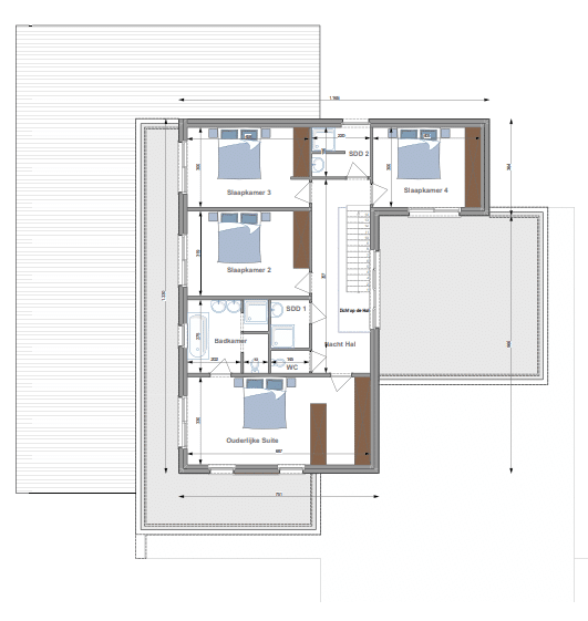
| Totale oppervlakte | 250 m² |
| Prijs per m² | 1.420€ Excl. BTW |
Kroonlijsthoogte: 5.8 m.
Woningen Compere realisaties
De materialen bij Woningen Compere
Andere buitenafwerkingen
Dakpannen
Gevelstenen
Ramen
Spanten
Tegels
Verwarming
