WC460
Andere huizen
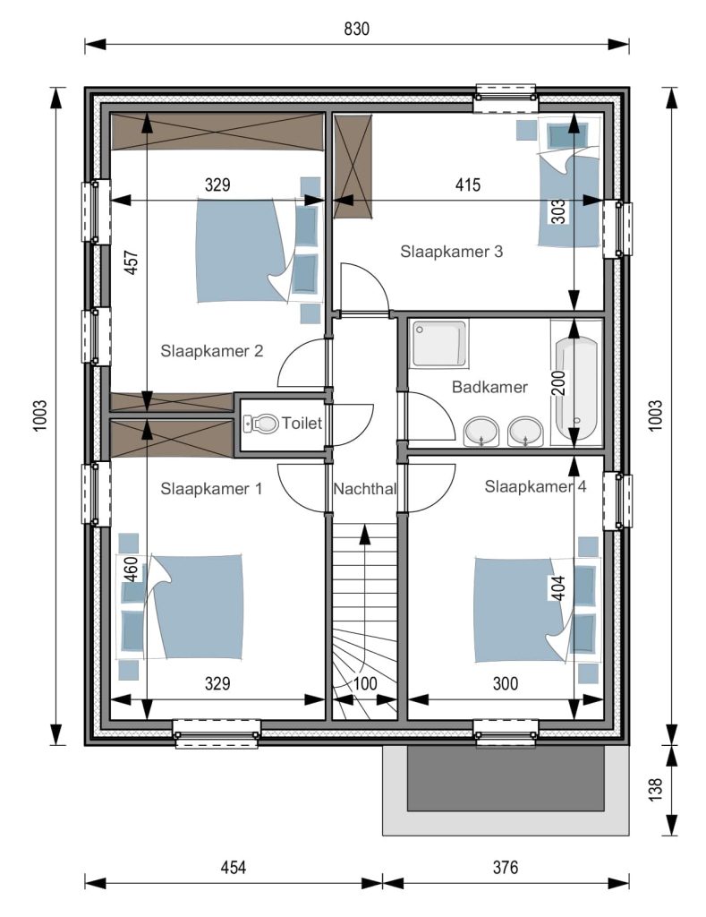
Plannen
Prijs
| Sleutel-op-de-deur | 223.872€ Excl. BTW |
|---|---|
| Winddichte ruwbouw | 154.398€ Excl. BTW |
| Totale oppervlakte | 172 m² |
| Prijs per m² | 1.264€ Excl. BTW |
Kroonlijsthoogte: 4.8 m.
Dakhelling: 35°
Woningen Compere realisaties
De materialen bij Woningen Compere
Andere buitenafwerkingen
Dakpannen
Gevelstenen
Ramen
Spanten
Tegels
Verwarming