WC604
Andere huizen
Plannen
Prijs
| Sleutel-op-de-deur | 248.531€ Excl. BTW |
|---|---|
| Winddichte ruwbouw | 171.079€ Excl. BTW |
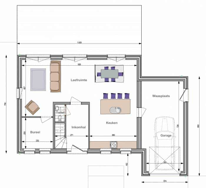
| Totale oppervlakte | 188 m² |
| Prijs per m² | 1.323€ Excl. BTW |
Kroonlijsthoogte: 4.4 m.
Dakhelling: 35°
Woningen Compere realisaties
De materialen bij Woningen Compere
Andere buitenafwerkingen
Dakpannen
Gevelstenen
Ramen
Spanten
Tegels
Verwarming