WC204
Andere huizen
Plannen
Prijs
| Sleutel-op-de-deur | 189.107€ Excl. BTW |
|---|---|
| Winddichte ruwbouw | 122.242€ Excl. BTW |
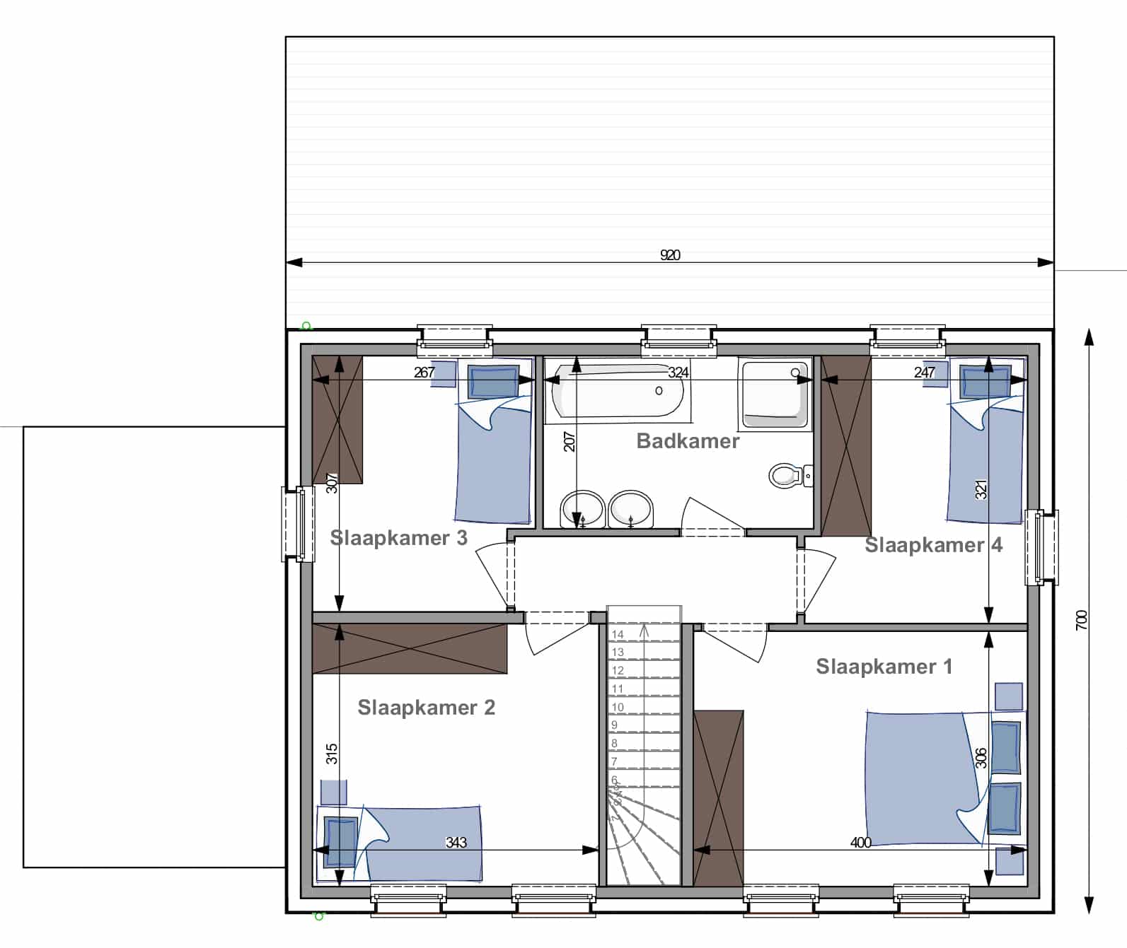
| Totale oppervlakte | 129 m² |
| Prijs per m² | 1.468€ Excl. BTW |
Kroonlijsthoogte: 4.2 m.
Dakhelling: 35°
Woningen Compere realisaties
De materialen bij Woningen Compere
Andere buitenafwerkingen
Dakpannen
Gevelstenen
Ramen
Spanten
Tegels
Verwarming