WC792
Andere huizen
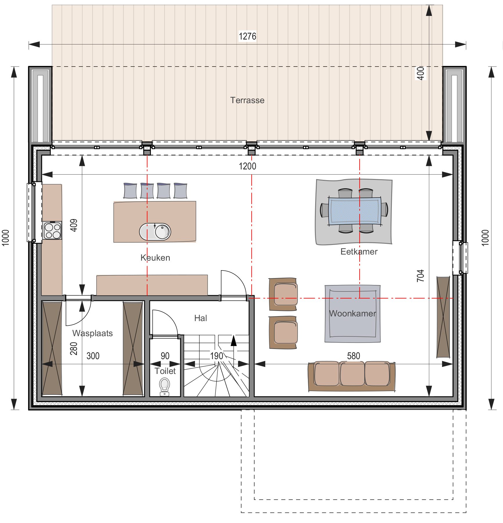
Plannen
Prijs
| Sleutel-op-de-deur | 347.158€ Excl. BTW |
|---|---|
| Winddichte ruwbouw | 265.587€ Excl. BTW |
| Totale oppervlakte | 226 m² |
| Prijs per m² | 1.536€ Excl. BTW |
Kroonlijsthoogte: 5.8 m.
Woningen Compere realisaties
De materialen bij Woningen Compere
Andere buitenafwerkingen
Dakpannen
Gevelstenen
Ramen
Spanten
Tegels
Verwarming
